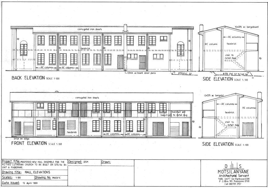
Church Hall Elevations