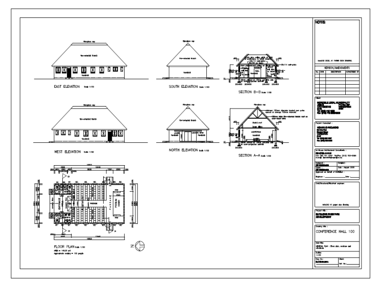
Conference Hall 100 (general plan)