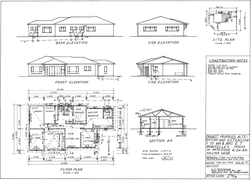
House Modiselle