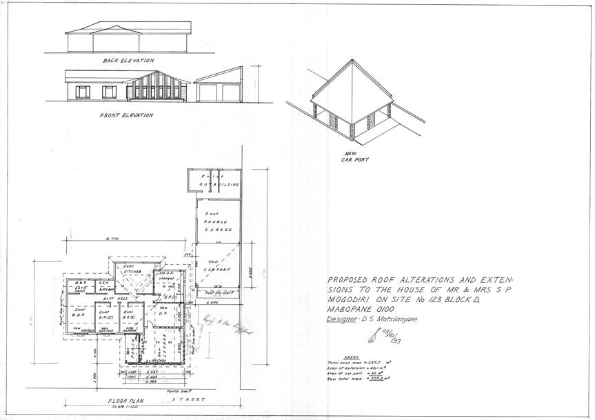
Design Concept Mogodiri