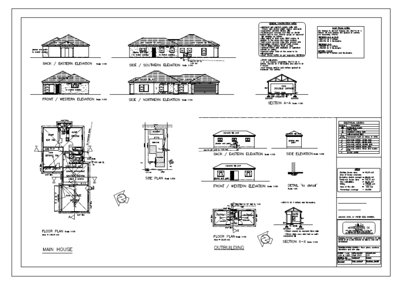
Motaung House finalXY