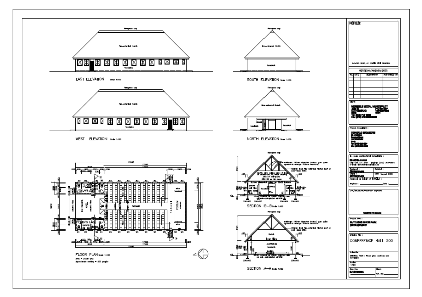
Conference Hall 200 (general plan)