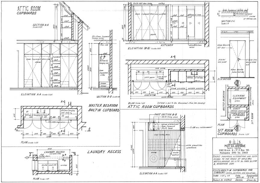
Own House: Built-in Cupboards