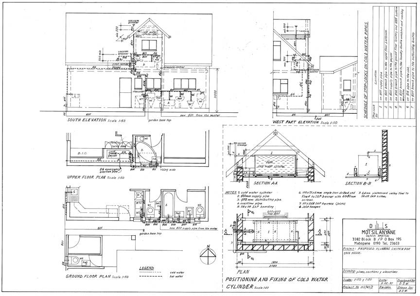
Own House: Plumbing System