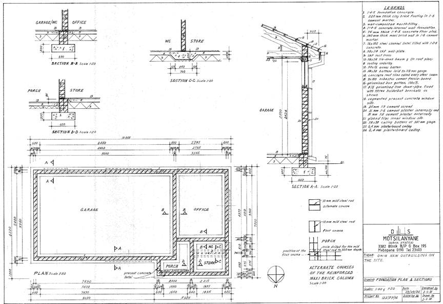
Own house: Outbuilding foundation plan & wall sections