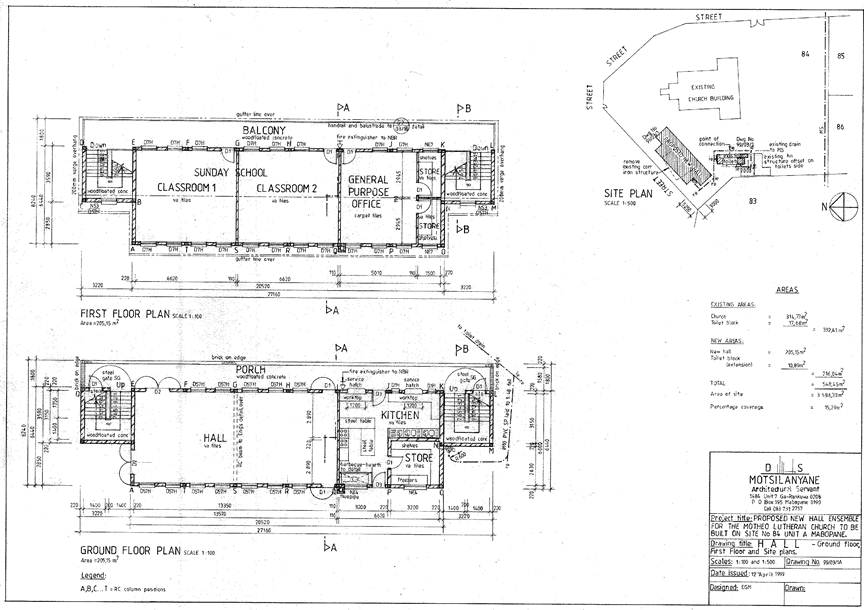
Church Hall Ground and 1st Floor plans