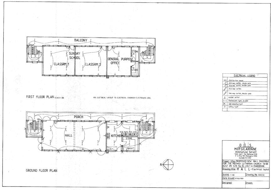
Church Hall electrical layout